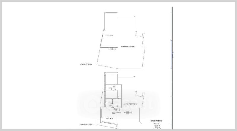
Appartamento in vendita Via Francesco Sciucchi , Chieti
Salva
Casa.it
1/37
  • Street View
  • Map