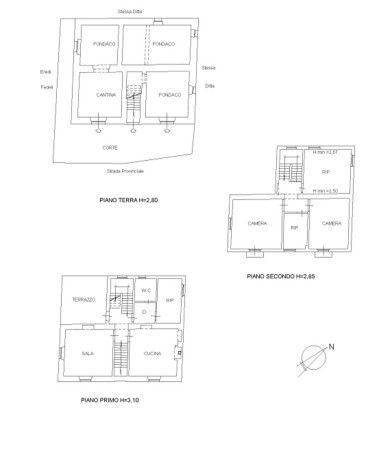
Appartamento in vendita Via Santa Lucia , Civitella del Tronto
Salva
Casa.it
1/21
  • Street View
  • Map