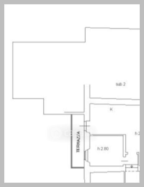
Appartamento in vendita Viale Piceno Aprutino , Civitella del Tronto
Salva
Casa.it
1/32
  • Street View
  • Map