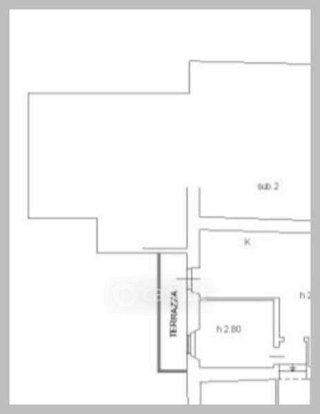
Appartamento in vendita Viale Piceno Aprutino , Civitella del Tronto
Salva
Contatta l'inserzionista
Casa.it