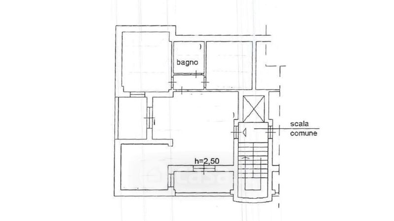
Appartamento in vendita Via Collevernesco 152, L'Aquila
Salva
Casa.it
1/17
  • Street View
  • Map