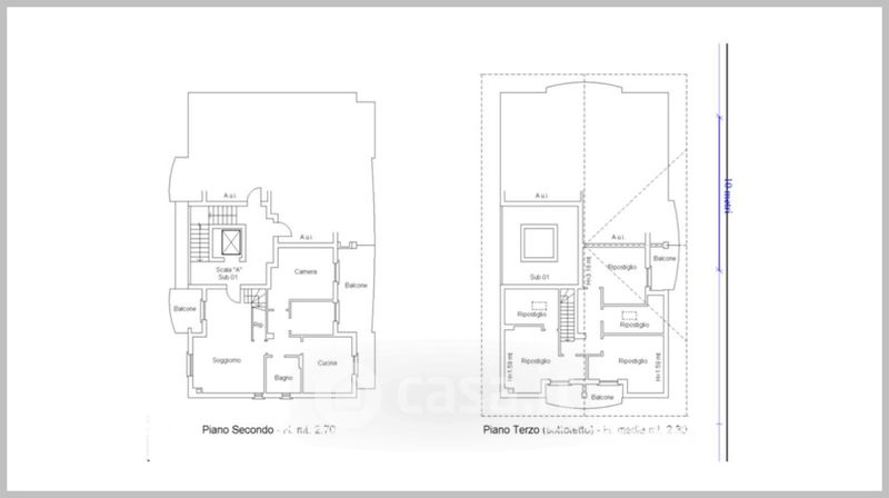
Appartamento in vendita Contrada Colombo , Ortona
Salva
Casa.it
1/37
  • Street View
  • Map