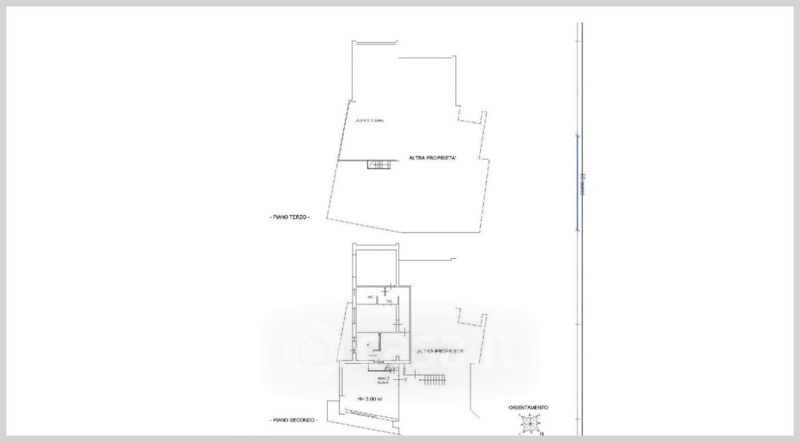
Appartamento in vendita Strada Statale 696 del Parco Regionale Sirente-Vel , Ovindoli
Salva
Casa.it
1/37
  • Street View
  • Map