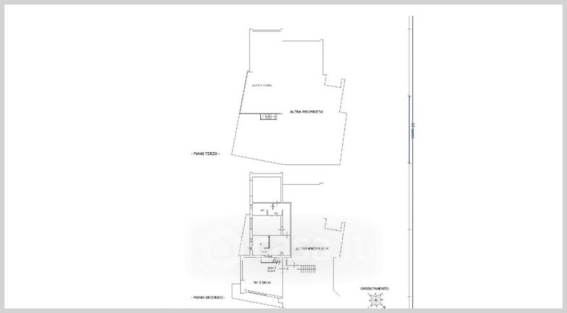
Appartamento in vendita Via Pizzo Intermesoli , Pescara
Salva
Casa.it
1/32
  • Street View
  • Map