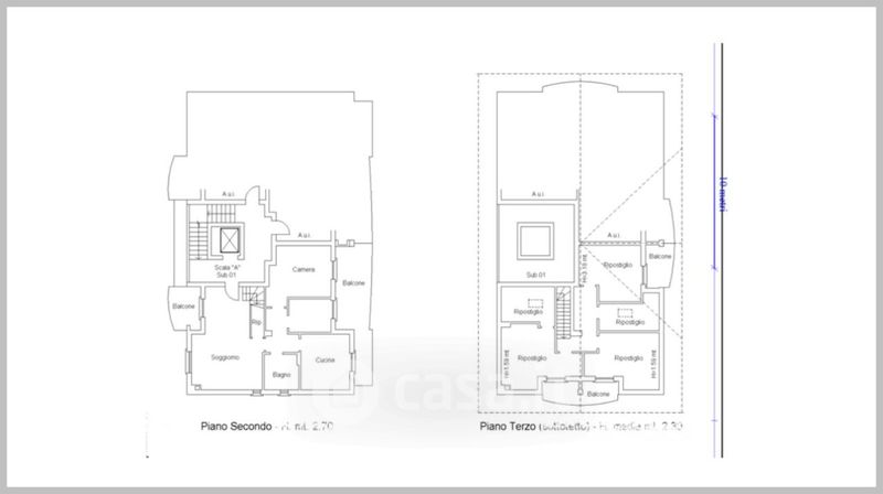
Appartamento in vendita Strada Pandolfi , Pescara
Salva
Casa.it
1/32
  • Street View
  • Map