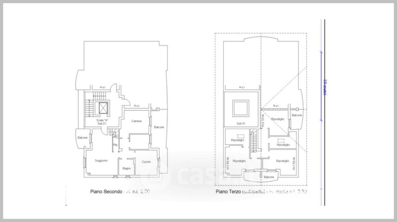
Appartamento in vendita Via Conte di Ruvo , Pescara
Salva
Casa.it
1/32
  • Street View
  • Map