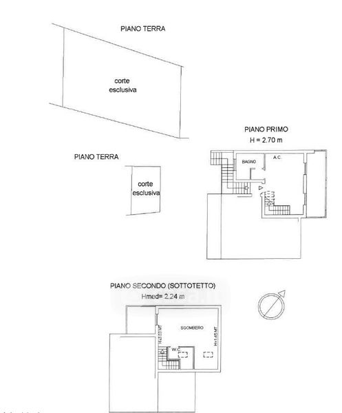
Appartamento in vendita Via della Madonnina 12, Spoltore
Salva
Casa.it
1/33
  • Street View
  • Map