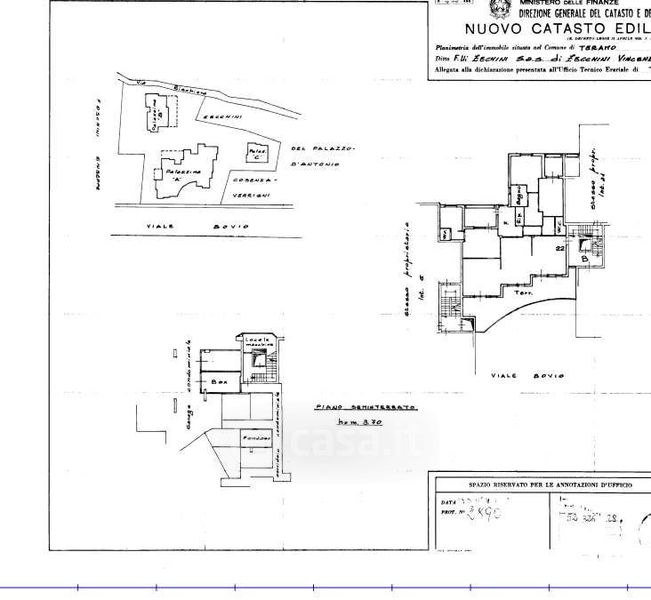
Appartamento in vendita Viale Giovanni Bovio 50, Teramo
Salva
Casa.it
1/101
  • Street View
  • Map