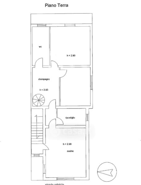
Appartamento in vendita Località Valle della Pietra 7, Bella
Salva
Casa.it
1/24
  • Street View
  • Map