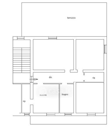
Appartamento in vendita Via del Palazzo , Potenza
Salva
Casa.it
1/35
  • Street View
  • Map