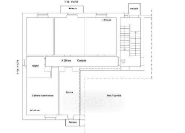
Appartamento in vendita Via Giuseppe Mazzini 211, Potenza
Salva
Casa.it
1/14
  • Street View
  • Map