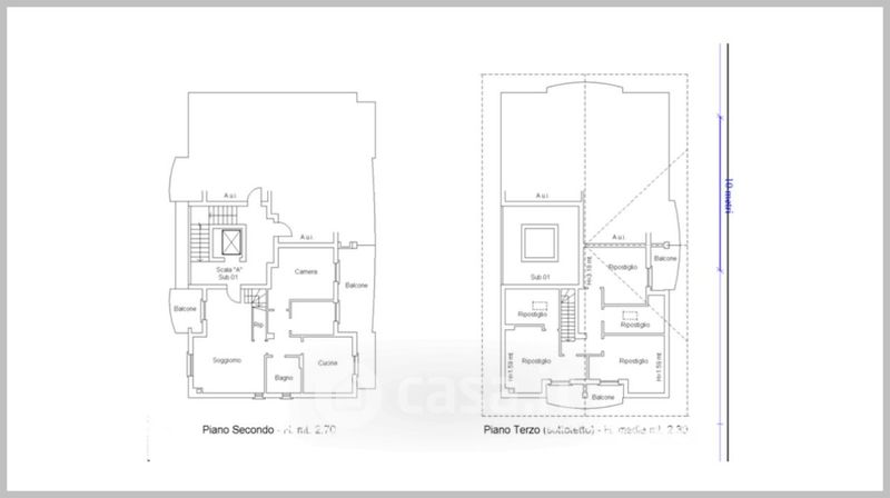
Appartamento in vendita Strada Comunale Campo di Rato , Satriano di Lucania
Salva
Casa.it
1/32
  • Street View
  • Map