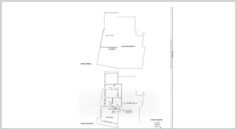
Appartamento in vendita Contrada San Nicola , Bovalino
Salva
Casa.it
1/32
  • Street View
  • Map