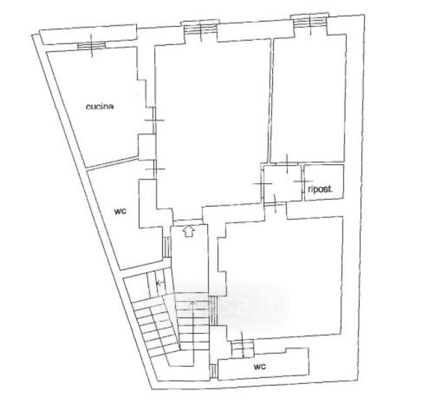
Appartamento in vendita Via Giuseppe Poerio 47, Catanzaro
Salva
Casa.it
1/21
  • Street View
  • Map