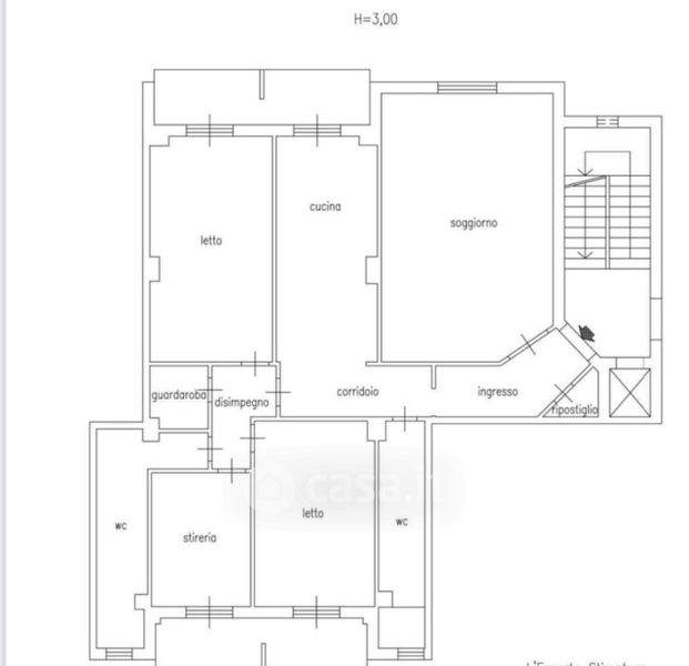
Appartamento in vendita Viale Vincenzo de Filippis 320, Catanzaro
Salva
Casa.it
1/41
  • Street View
  • Map