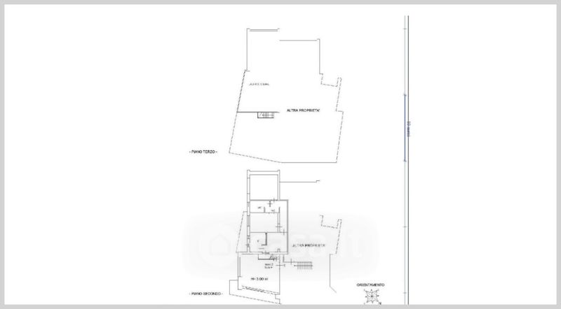
Appartamento in vendita Strada P 1 Viale Vincenzo Gattoleo , Catanzaro
Salva
Casa.it
1/32
  • Street View
  • Map