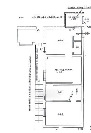
Appartamento in vendita Via Lago Arvo 42, Catanzaro
Salva
Casa.it
1/14
  • Street View
  • Map