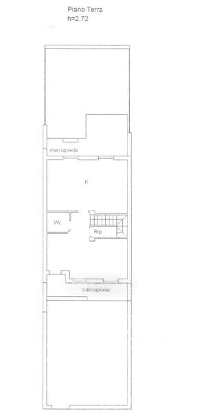
Appartamento in vendita Via della Solidarietà , Catanzaro
Salva
Casa.it
1/34
  • Street View
  • Map