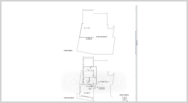
Appartamento in vendita Strada Statale 19 delle Calabrie , Cosenza
Salva
Casa.it
1/37
  • Street View
  • Map