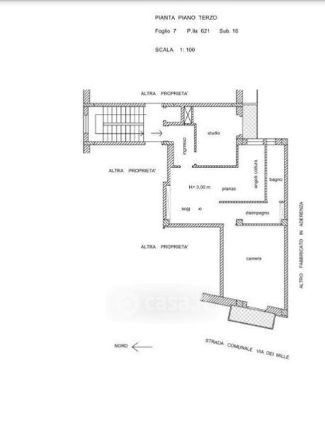
Appartamento in vendita Via dei Mille , Cosenza
Salva
Casa.it
1/42
  • Street View
  • Map