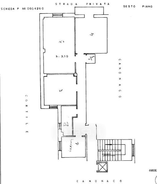
Appartamento in vendita Via Panebianco 31, Cosenza
Salva
Casa.it
1/16
  • Street View
  • Map