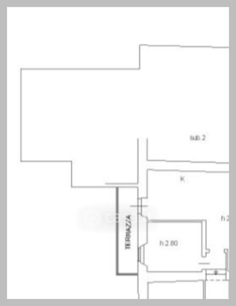
Appartamento in vendita Via Treviso , Cutro
Salva
Casa.it
1/32
  • Street View
  • Map