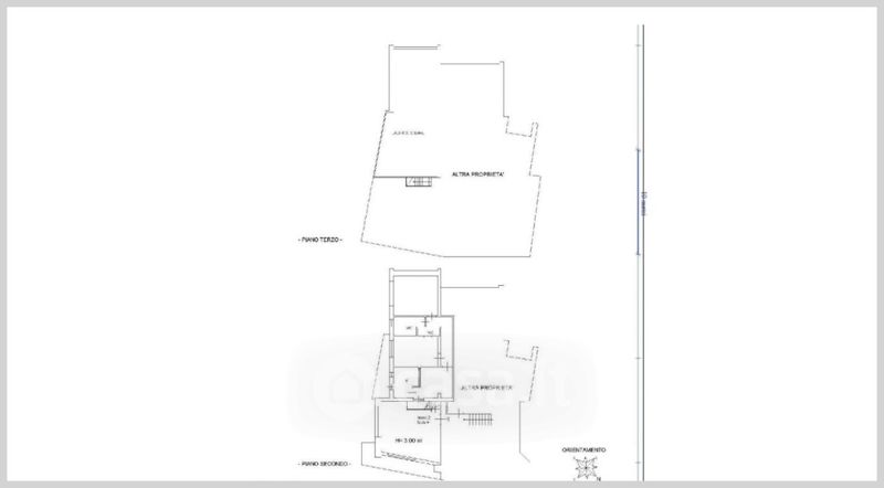
Appartamento in vendita Contrada Colea , Gerocarne
Salva
Casa.it
1/32
  • Street View
  • Map