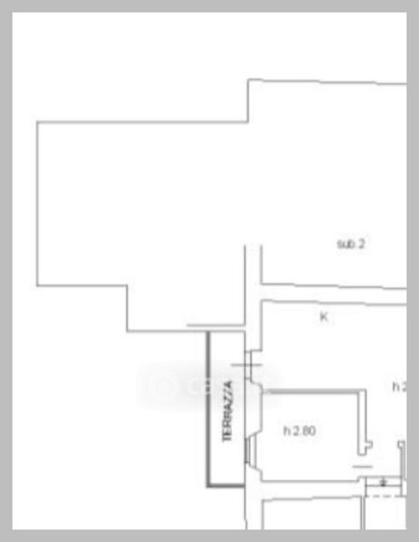
Appartamento in vendita Vico I Biricchini , Isola di Capo Rizzuto
Salva
Casa.it
1/37
  • Street View
  • Map