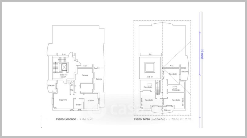
Appartamento in vendita Via dei Giardini , Marina di Gioiosa Ionica
Salva
Casa.it
1/32
  • Street View
  • Map