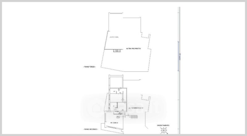
Appartamento in vendita Via Roma , Mendicino
Salva
Casa.it
1/30
  • Street View
  • Map