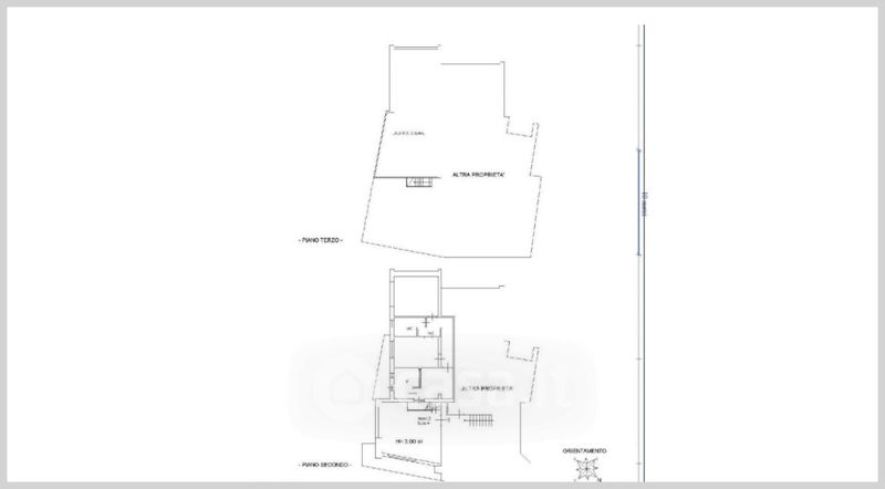
Appartamento in vendita Via Basso la Motta , Mendicino
Salva
Contatta l'inserzionista
Casa.it