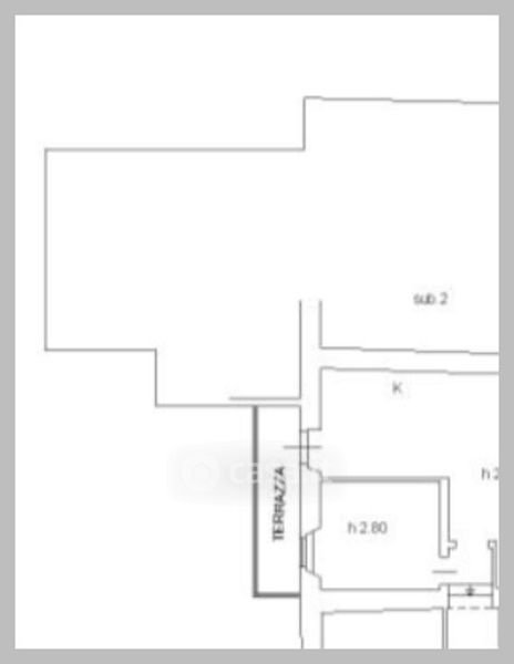
Appartamento in vendita Via Umberto Boccioni , Montalto Uffugo
Salva
Casa.it
1/31
  • Street View
  • Map