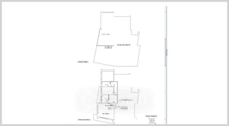
Appartamento in vendita Via G. da Verrazzano , Montalto Uffugo
Salva
Casa.it
1/32
  • Street View
  • Map