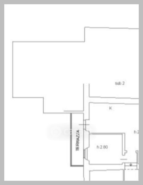
Appartamento in vendita Via Umberto Boccioni , Montalto Uffugo
Salva
Contatta l'inserzionista
Casa.it