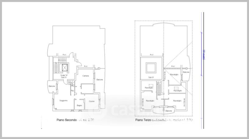
Appartamento in vendita Via Spirito Santo II , Reggio Calabria
Salva
Casa.it
1/32
  • Street View
  • Map