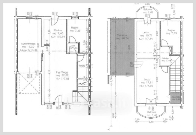
Appartamento in vendita Via Casa Savoia , Reggio Calabria
Salva
Casa.it
1/32
  • Street View
  • Map