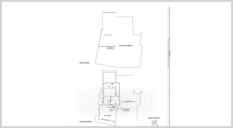
Appartamento in vendita Via Fratelli Bandiera , Rovito
Salva
Casa.it
1/32
  • Street View
  • Map