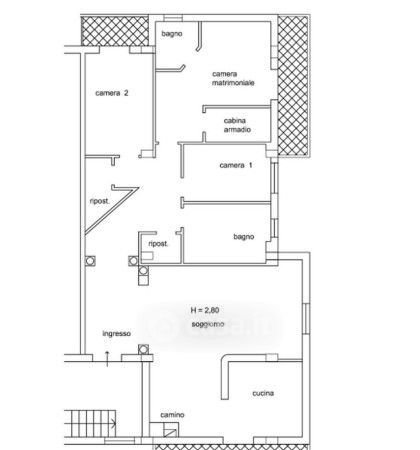
Appartamento in vendita Via Croce 14, San Benedetto Ullano
Salva
Casa.it
1/21
  • Street View
  • Map