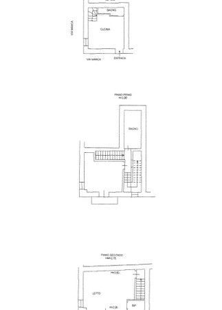
Appartamento in vendita Via Concezione , San Fili
Salva
Casa.it
1/18
  • Street View
  • Map