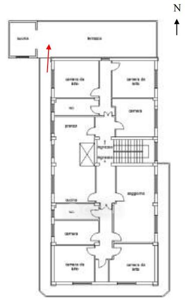
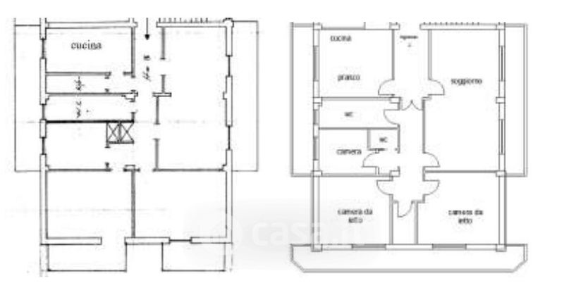
Appartamento in vendita Via Orsa Minore , Satriano
Salva
Casa.it
1/34
  • Street View
  • Map