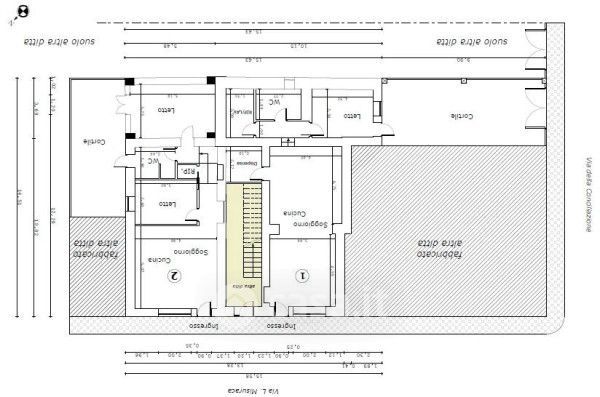
Appartamento in vendita Via G. Cimato , Siderno
Salva
Casa.it
1/21
  • Street View
  • Map