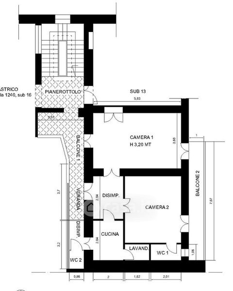
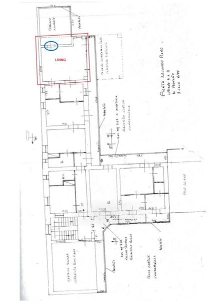
Appartamento in vendita Piazza Emmanuele Gianturco , Afragola
Salva
Casa.it
1/33
  • Street View
  • Map