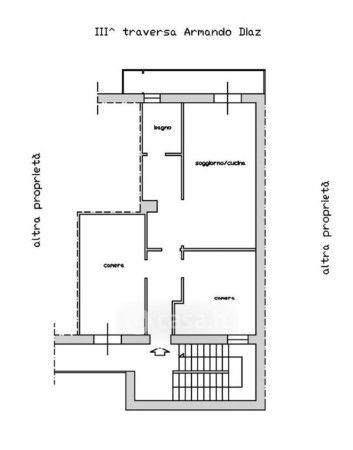
Appartamento in vendita Via Armando Diaz 37, Afragola
Salva
Casa.it
1/22
  • Street View
  • Map