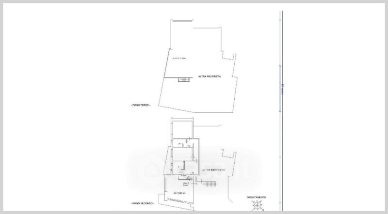
Appartamento in vendita III Vicolo Nicola Setola , Afragola
Salva
Casa.it
1/32
  • Street View
  • Map