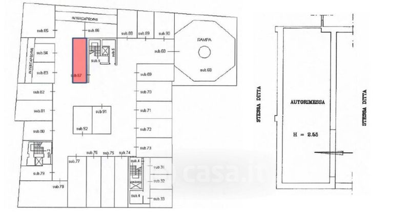
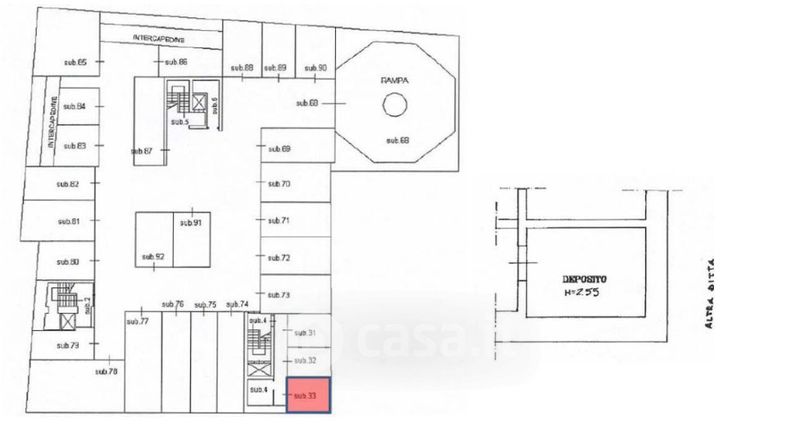
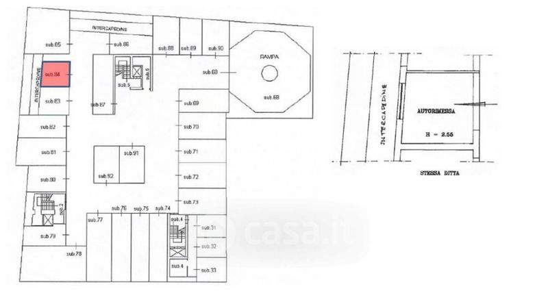
Appartamento in vendita Via San Giacomo , Atripalda
Salva
Casa.it
1/34
  • Street View
  • Map