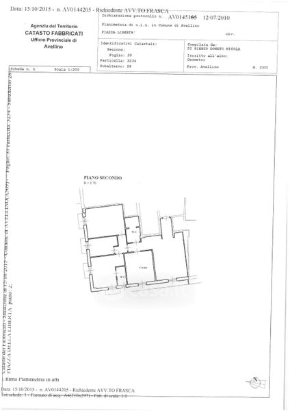
Appartamento in vendita Piazza Libertà/Via Generale Cascino , Avellino
Salva
Casa.it
1/18
  • Street View
  • Map