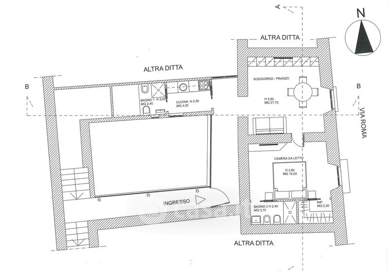
Appartamento in vendita Via Roma , Aversa
Salva
Casa.it
1/26
  • Street View
  • Map