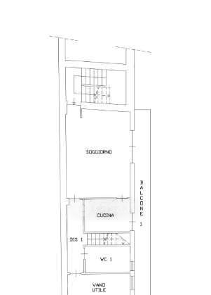
Appartamento in vendita Via Nunzio Pelliccia , Aversa
Salva
Casa.it
1/15
  • Street View
  • Map