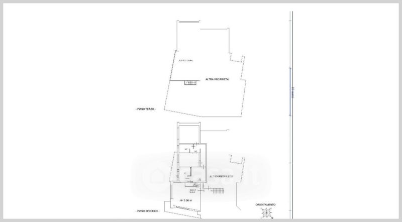
Appartamento in vendita Via Regina Elena , Bellona
Salva
Casa.it
1/39
  • Street View
  • Map