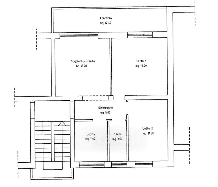
Appartamento in vendita Via Benedetto Bonazzi , Benevento
Salva
Contatta l'inserzionista
Casa.it